_nr 2022-003

Konkurs ograniczony, dwuetapowy, realizacyjny, architektoniczno-urbanistyczny na opracowanie koncepcji jubileuszowego budynku dydaktyczno-konferencyjnego Uniwersytetu Ekonomicznego w Krakowie

Informacje

Lokalizacja: Kraków
Województwo: Małopolskie
Organizator: Uniwersytet Ekonomiczny w Krakowie
Współorganizator: SARP Oddział Kraków
Tryb: Zamówienie z wolnej ręki
Rodzaj: Realizacyjny
Typ: Dwuetapowy
Data ogłoszenia konkursu: 17.02.2022
Data rejestracji uczestników: 11.03.2022
Data składania prac: 20.05.2022
Data ogłoszenia wyników: 12.09.2022

Sędziowie

_Przewodniczący:
  • Zbigniew Maćków, SARP Oddział Wrocław
_Sędzia referent:
  • Michał Szymanowski, SARP Oddział Kraków
_Asystent sędziego referenta:
  • Gaja Bieniasz, SARP Oddział Kraków
_Członkowie sądu:
  • Oana Bogdan, SARP Oddział Kraków
  • Marcin Pawłowski, MPOIA RP
  • Karolina Klecha-Tylec, UEK
  • Krzysztof Głuc, UEK
  • Agnieszka Lakner, UEK
  • Piotr Polek, UEK
  • Włodzimierz Dębowski, UEK
_Sekretarz konkursu:
  • Rafał Zawisza, SARP Oddział Kraków
_Asystent sekretarza konkursu:
  • Justyna Kolarz, SARP Oddział Kraków

Opis konkursu

Uniwersytet Ekonomiczny w Krakowie, którego tradycje sięgają 1925 roku, zorganizował Konkurs dla wielofunkcyjnego kompleksu, który uzupełniłby program funckjonalny istniejącego kampusu. Teren opracowania przy ul. Rakowickiej położony jest w bezpośrednim sąsiedztwie Starego Miasta i został wpisany do rejestru zabytków. Nowy energooszczędny budynek powinien pełnić funckję zarówno dydaktyczną jak i biurową. Uczestnicy Konkursu powinni uwzględnić również aulę (dla min. 500 osób), zaplecze gastronomiczne, pomieszczenia lokalnego centrum informatyki oraz pokoje gościnne. Projekt, zgodny z zsadami zrównowazonego rozwoju, stanie się obiektem jubileuszowym z okazji 100-lecia Uczelni. [AK]

Do II Etapu Konkursu zaproszono 5 uczestników. Wszyscy złożyli opracowania konkursowe. 

Materiały zostały opublikowane dzięki uprzejmości i za zgodą Organizatora Konkursu.

Wyniki konkursu

Zaloguj się, aby mieć pełny dostęp do galerii.
Rejestracja jest darmowa i pomaga nam
udostępniać materiały bezpłatnie.

Zaloguj się, aby mieć pełny dostęp do galerii.
Rejestracja jest darmowa i pomaga nam
udostępniać materiały bezpłatnie.

Zaloguj się, aby mieć pełny dostęp do galerii.
Rejestracja jest darmowa i pomaga nam
udostępniać materiały bezpłatnie.

Zaloguj się, aby mieć pełny dostęp do galerii.
Rejestracja jest darmowa i pomaga nam
udostępniać materiały bezpłatnie.

Zaloguj się, aby mieć pełny dostęp do galerii.
Rejestracja jest darmowa i pomaga nam
udostępniać materiały bezpłatnie.

Zaloguj się, aby mieć pełny dostęp do galerii.
Rejestracja jest darmowa i pomaga nam
udostępniać materiały bezpłatnie.

Zaloguj się, aby mieć pełny dostęp do galerii.
Rejestracja jest darmowa i pomaga nam
udostępniać materiały bezpłatnie.

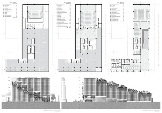
I nagroda 60 000 zł + 5 000 zł

BE DDJM Architekci
be-ddjm.com

Autorzy: Mateusz Dudek, Marek Dunikowski, Hugo Herrera Pianno; Współpraca autorska: Gabriela Kasperkiewicz, Matus Scarenka, Olimpia Starzycka, Aleksandra Śliwa, Melanie Ghanem, Filip Potoczek

Uzasadnienie wyboru pracy:
Sąd Konkursowy zdecydował o przyznaniu pierwszej nagrody pracy w uznaniu odwagi i konsekwencji w sformułowaniu i przeprowadzeniu nadrzędnej idei projektu. Filozofia funkcjonowania kampusu uniwersyteckiego w oparciu o zasady zrównoważonego rozwoju stanowi w wybranej pracy wiodącą narrację, wprowadzającą Uczelnię w nowe stulecie z niezwykle ważnym i istotnym społecznie przesłaniem.

więcej
Zaloguj się, aby mieć pełny dostęp do galerii.
Rejestracja jest darmowa i pomaga nam
udostępniać materiały bezpłatnie.

Zaloguj się, aby mieć pełny dostęp do galerii.
Rejestracja jest darmowa i pomaga nam
udostępniać materiały bezpłatnie.

Zaloguj się, aby mieć pełny dostęp do galerii.
Rejestracja jest darmowa i pomaga nam
udostępniać materiały bezpłatnie.

Zaloguj się, aby mieć pełny dostęp do galerii.
Rejestracja jest darmowa i pomaga nam
udostępniać materiały bezpłatnie.

Zaloguj się, aby mieć pełny dostęp do galerii.
Rejestracja jest darmowa i pomaga nam
udostępniać materiały bezpłatnie.

Zaloguj się, aby mieć pełny dostęp do galerii.
Rejestracja jest darmowa i pomaga nam
udostępniać materiały bezpłatnie.

Zaloguj się, aby mieć pełny dostęp do galerii.
Rejestracja jest darmowa i pomaga nam
udostępniać materiały bezpłatnie.

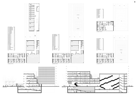
II nagroda równorzędna 22 500 zł + 5 000 zł

JSK Architekci
jskarchitekci.pl

Autorzy: Mariusz Rutz, Zbigniew Pszczulny, Piotr Bury, Anna Okoń, Piotr Słomianowski, Ludwika Buczyńska

Uzasadnienie wyboru pracy:
Praca uzyskała II równorzędną nagrodę w konkursie za zdyscyplinowane, konsekwentne i prawidłowe rozwiązania funkcjonalne i przestrzenne samego budynku, a także, odnoszący się do otaczającej zabudowy, prawidłowy podział obiektu na kilka mniejszych brył. Za cenną Sąd Konkursowy uznał propozycję wykorzystania przestrzeni na wschód od projektowanego budynku na ogólnodostępny pasaż gastronomiczno-rekreacyjny. Nie zakłócając funkcji budynku i mając możliwość działania zarówno w połączeniu z holem parteru budynku jak i niezależnie, tworzy on swego rodzaju forum dla studentów i pracowników Uczelni.

Zaloguj się, aby mieć pełny dostęp do galerii.
Rejestracja jest darmowa i pomaga nam
udostępniać materiały bezpłatnie.

Zaloguj się, aby mieć pełny dostęp do galerii.
Rejestracja jest darmowa i pomaga nam
udostępniać materiały bezpłatnie.

Zaloguj się, aby mieć pełny dostęp do galerii.
Rejestracja jest darmowa i pomaga nam
udostępniać materiały bezpłatnie.

Zaloguj się, aby mieć pełny dostęp do galerii.
Rejestracja jest darmowa i pomaga nam
udostępniać materiały bezpłatnie.

Zaloguj się, aby mieć pełny dostęp do galerii.
Rejestracja jest darmowa i pomaga nam
udostępniać materiały bezpłatnie.

Zaloguj się, aby mieć pełny dostęp do galerii.
Rejestracja jest darmowa i pomaga nam
udostępniać materiały bezpłatnie.

Zaloguj się, aby mieć pełny dostęp do galerii.
Rejestracja jest darmowa i pomaga nam
udostępniać materiały bezpłatnie.

II nagroda równorzędna 22 500 zł + 5 000 zł

WXCA
wxca.pl

Autorzy: Szczepan Wroński, Michał Czerwiński, Michał Sokołowski, Małgorzata Bonowicz, Jakub Matela, Jan Zawadzki, Anna Dobek-Lenczewska, Mariia Kolomiitseva, Adrianna Manista, Anna Majewska-Karolak, Angelika Drozd, Andrzej Bulanda

Uzasadnienie wyboru pracy:
Sąd Konkursowy zdecydował o II równorzędnej nagrodzie dla pracy za niezwykle konsekwentnie przeprowadzoną transformację idei zwartego, majestatycznie pięknego gmachu, przez cały proces projektowy. Wszystkie zalety koncepcji konkursowej, wymienione w opinii dla etapu pierwszego, zostały utrzymane, a projekt ewoluował w dobrym kierunku. Każda decyzja ma tu swoje uzasadnienie i oparcie w nadrzędnej filozofii obiektu.

więcej
Zaloguj się, aby mieć pełny dostęp do galerii.
Rejestracja jest darmowa i pomaga nam
udostępniać materiały bezpłatnie.

Zaloguj się, aby mieć pełny dostęp do galerii.
Rejestracja jest darmowa i pomaga nam
udostępniać materiały bezpłatnie.

Zaloguj się, aby mieć pełny dostęp do galerii.
Rejestracja jest darmowa i pomaga nam
udostępniać materiały bezpłatnie.

Zaloguj się, aby mieć pełny dostęp do galerii.
Rejestracja jest darmowa i pomaga nam
udostępniać materiały bezpłatnie.

Zaloguj się, aby mieć pełny dostęp do galerii.
Rejestracja jest darmowa i pomaga nam
udostępniać materiały bezpłatnie.

Zaloguj się, aby mieć pełny dostęp do galerii.
Rejestracja jest darmowa i pomaga nam
udostępniać materiały bezpłatnie.

Wyróżnienie honorowe 5 000 zł

studio4SPACE, Atelier Entropic
studio4space.com, entropic.es

Autorzy: Bartosz Dendura, Magdalena Mróz, Geoffrey Eberle, Katarzyna Dendura, Dionysios Kakoulis, Martyna Mądry, Katarzyna Obara, Lukas Olma, Sylwia Chudzik

Uzasadnienie wyboru pracy:
Praca uzyskała w konkursie wyróżnienie honorowe za konsekwentne i atrakcyjne rozwiązania kształtujące zarówno przestrzeń północno-wschodniego narożnika działki uczelni jak i sam budynek. Projekt wyróżnia "Budynek jubileuszowy" jako wyróżniające się funkcjonalnie i architektonicznie nowe centrum całego Campusu. Sąd Konkursowy uznał za wartościowe nieszablonowe potraktowanie ogólnodostępnej przestrzeni łączącej poszczególne elementy strefy dydaktycznej obiektu. Przenikające się, zarówno w poszczególnych poziomach jak i w pionie hole, tworzą fascynującą drogę, która stanowi nie tylko dojście do konkretnych sal, ale jest swoistym forum Uczelni – miejscem spotkań, pracy indywidualnej i rekreacji dla studentów.

platforma ARCHIKONKURS istnieje dzięki wsparciu

Forbo
Stowarzyszenie Producentów Cementu
Strona internetowa Archikonkurs wykorzystuje pliki „cookies”. Użytkownik może zmienić warunki korzystania z plików "cookies" poprzez zmianę ustawień przeglądarki. Szczegółowe informacje na temat przechowywania i wykorzystania plików "cookies" znajdują się w Polityce Prywatności