_nr 2025-026

Wyniki konkursu na koncepcję Szkoły Podstawowej w Modlniczce

Informacje

Lokalizacja: Modlniczka
Województwo: Małopolskie
Organizator: Urząd Gminy Wielka Wieś
Współorganizator: SARP Oddział Kraków
Tryb: Zamówienie z wolnej ręki
Rodzaj: Realizacyjny
Typ: Jednoetapowy
Data ogłoszenia konkursu: 28.05.2025
Data rejestracji uczestników: 16.06.2025
Data składania prac: 25.08.2025
Data ogłoszenia wyników: 12.09.2025

Sędziowie

_Przewodniczący:
  • Piotr Bujnowski, OW SARP
_Sędzia referent:
  • Piotr Urbanowicz, SARP Oddział Kraków
_Członkowie sądu:
  • Piotr Wróbel, SARP Oddział Kraków
  • Karol Tucharz, Urząd Gminy Wielka Wieś
  • Małgorzata Biniek, ZSP w Modlnicy
  • Adam Kosek, Urząd Gminy Wielka Wieś
  • Ewelina Janas, Urząd Gminy Wielka Wieś
_Sekretarz konkursu:
  • Marek Kaszyński, SARP Oddział Kraków

Opis konkursu

Przedmiotem konkursu zorganizowanego przez Urząd Gminy Wielka Wieś przy wsparciu SARP Oddział Kraków było opracowanie koncepcji budowy nowego budynku szkoły podstawowej wraz z zagospodarowaniem terenu działki zlokalizowanej w Modlniczce. Należało zaprojektować obiekt dla 500 uczniów z uwzględnieniem: 

  • rezerwy terenu dla ew. realizacji 4-oddziałowego zespołu przedszkolnego dla 100 dzieci;
  • Sali audytoryjnej;
  • ew. rozbudowy szkoły o dodatkowe oddziały szkolne związane np. z przyszłą zmianą potrzeb; 
  • strefy sportowo-rekreacyjnej. 

Organizator zwrócił szczególną uwagę na wymóg zawarcia rozwiązań dla bezpiecznej komunikacji i przejść pieszych przeznaczonych zarówno dla uczniów szkoły, jak i rodziców i osób odwiedzających. [AK]

W konkursie zostało złożonych 17 opracowań. 

Maksymalny planowany koszt realizacji inwestycji - 31 450 000 zł brutto
Maksymalny planowany koszt wynagrodzenia projektanta - 1 119 000 zł brutto

Materiały zostały opublikowane dzięki uprzejmości i za zgodą Uczestników oraz Organizatora Konkursu. 

Wyniki konkursu

Zaloguj się, aby mieć pełny dostęp do galerii.
Rejestracja jest darmowa i pomaga nam
udostępniać materiały bezpłatnie.

Zaloguj się, aby mieć pełny dostęp do galerii.
Rejestracja jest darmowa i pomaga nam
udostępniać materiały bezpłatnie.

Zaloguj się, aby mieć pełny dostęp do galerii.
Rejestracja jest darmowa i pomaga nam
udostępniać materiały bezpłatnie.

Zaloguj się, aby mieć pełny dostęp do galerii.
Rejestracja jest darmowa i pomaga nam
udostępniać materiały bezpłatnie.

Zaloguj się, aby mieć pełny dostęp do galerii.
Rejestracja jest darmowa i pomaga nam
udostępniać materiały bezpłatnie.

Zaloguj się, aby mieć pełny dostęp do galerii.
Rejestracja jest darmowa i pomaga nam
udostępniać materiały bezpłatnie.

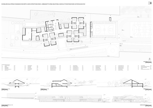
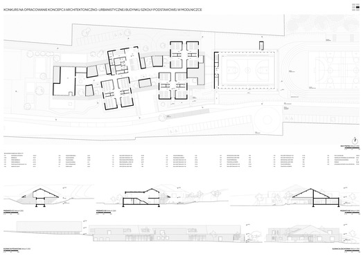
I nagroda 40 000 zł

PA.Format Architekci
pa-format.pl

Autorzy: Robert Tarczyński, Emilia Król-Tarczyńska, Agnieszka Legut, Wiktoria Baćkowska, Oskar Tychoniuk, Natalia Kaczor, Aleksandra Madoń

Uzasadnienie wyboru pracy:
Za połączenie wrażliwości z racjonalnością, stworzenie zhumanizowanych przestrzeni dla dzieci i nauczycieli, świadczące o zrozumieniu edukacyjnoszkolnej funkcji obiektu, za ukształtowanie funkcjonalnych i atrakcyjnych przestrzeni wspólnych, za oszczędną i bezpretensjonalną formą architektoniczną adekwatną do skali i budżetu inwestycji, za świadome wprowadzenie rozwiązań związanych ze zrównoważonym rozwojem, jak również za umiejętne zapewnienie dostępności budynku dla użytkowników z niepełnosprawnościami, za realistyczne podejście do etapowania inwestycji dające szerokie możliwości rozwoju, a także za wysoką jakość warsztatu architektonicznego.

Zaloguj się, aby mieć pełny dostęp do galerii.
Rejestracja jest darmowa i pomaga nam
udostępniać materiały bezpłatnie.

Zaloguj się, aby mieć pełny dostęp do galerii.
Rejestracja jest darmowa i pomaga nam
udostępniać materiały bezpłatnie.

Zaloguj się, aby mieć pełny dostęp do galerii.
Rejestracja jest darmowa i pomaga nam
udostępniać materiały bezpłatnie.

Zaloguj się, aby mieć pełny dostęp do galerii.
Rejestracja jest darmowa i pomaga nam
udostępniać materiały bezpłatnie.

Zaloguj się, aby mieć pełny dostęp do galerii.
Rejestracja jest darmowa i pomaga nam
udostępniać materiały bezpłatnie.

Zaloguj się, aby mieć pełny dostęp do galerii.
Rejestracja jest darmowa i pomaga nam
udostępniać materiały bezpłatnie.

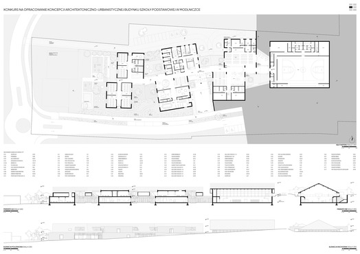
II nagroda 25 000 zł

OVO Grąbczewscy Architekci
ovo-grabczewscy.pl

Autorzy: Barbara Grąbczewska, Oskar Grąbczewskia, Marek Grąbczewski, Kamil Kajdas, Michał Kolonko, Maria Grąbczewska

Uzasadnienie wyboru pracy:
Za twórcze odwołanie się do koncepcji architektury lokalnej z zachowaniem współczesnej formy, za przemyślane i funkcjonalne strefowanie obiektu edukacyjnego, trafne zagospodarowanie terenów zielonych, a także za wysoką jakość warsztatu architektonicznego.

Zaloguj się, aby mieć pełny dostęp do galerii.
Rejestracja jest darmowa i pomaga nam
udostępniać materiały bezpłatnie.

Zaloguj się, aby mieć pełny dostęp do galerii.
Rejestracja jest darmowa i pomaga nam
udostępniać materiały bezpłatnie.

Zaloguj się, aby mieć pełny dostęp do galerii.
Rejestracja jest darmowa i pomaga nam
udostępniać materiały bezpłatnie.

Zaloguj się, aby mieć pełny dostęp do galerii.
Rejestracja jest darmowa i pomaga nam
udostępniać materiały bezpłatnie.

III nagroda 15 000 zł

MOC Architekci
mocarch.pl

Autorzy: Błażej Janik, Ewa Janik, Maciej Szweda, Barbara Hałat, Dawid Biebrzyński

Uzasadnienie wyboru pracy:
Za umiejętne i z dużą wrażliwością wpisanie obiektu w krajobraz, a także za trafne wykorzystanie istniejących terenów zielonych dla kształtowania przestrzeni.

Zaloguj się, aby mieć pełny dostęp do galerii.
Rejestracja jest darmowa i pomaga nam
udostępniać materiały bezpłatnie.

Zaloguj się, aby mieć pełny dostęp do galerii.
Rejestracja jest darmowa i pomaga nam
udostępniać materiały bezpłatnie.

Zaloguj się, aby mieć pełny dostęp do galerii.
Rejestracja jest darmowa i pomaga nam
udostępniać materiały bezpłatnie.

Zaloguj się, aby mieć pełny dostęp do galerii.
Rejestracja jest darmowa i pomaga nam
udostępniać materiały bezpłatnie.

Zaloguj się, aby mieć pełny dostęp do galerii.
Rejestracja jest darmowa i pomaga nam
udostępniać materiały bezpłatnie.

Zaloguj się, aby mieć pełny dostęp do galerii.
Rejestracja jest darmowa i pomaga nam
udostępniać materiały bezpłatnie.

Wyróżnienie honorowe

ARP Manecki Architekci
arpbiuro.pl

Autorzy: Mateusz Manecki, Dawid Leszczyński, Dawid Piórecki, Daniel Targosz, Gabriela Drobniak, Artur Tomaszek

Uzasadnienie wyboru pracy:
Za prostą i skromną architekturę odnoszącą się do klasycznego archetypu szkoły, trafnie dostosowaną do istniejącego ukształtowania terenu.

Zaloguj się, aby mieć pełny dostęp do galerii.
Rejestracja jest darmowa i pomaga nam
udostępniać materiały bezpłatnie.

Zaloguj się, aby mieć pełny dostęp do galerii.
Rejestracja jest darmowa i pomaga nam
udostępniać materiały bezpłatnie.

Zaloguj się, aby mieć pełny dostęp do galerii.
Rejestracja jest darmowa i pomaga nam
udostępniać materiały bezpłatnie.

Zaloguj się, aby mieć pełny dostęp do galerii.
Rejestracja jest darmowa i pomaga nam
udostępniać materiały bezpłatnie.

Zaloguj się, aby mieć pełny dostęp do galerii.
Rejestracja jest darmowa i pomaga nam
udostępniać materiały bezpłatnie.

Zaloguj się, aby mieć pełny dostęp do galerii.
Rejestracja jest darmowa i pomaga nam
udostępniać materiały bezpłatnie.

Wyróżnienie honorowe

OTO Arquitectos
oto.pt

Autorzy: Martyna Słowińska, Paweł Pacak, Katarzyna Sapota-Zawalska, Nuno Teixeira Martins, André Castro Santos, Afonso Ramos, Gonçalo Santos

Uzasadnienie wyboru pracy:
Za kreatywne połączenie form architektury lokalnej i współczesnej oraz za umiejętne i wrażliwe wkomponowanie zieleni.

Zaloguj się, aby mieć pełny dostęp do galerii.
Rejestracja jest darmowa i pomaga nam
udostępniać materiały bezpłatnie.

Zaloguj się, aby mieć pełny dostęp do galerii.
Rejestracja jest darmowa i pomaga nam
udostępniać materiały bezpłatnie.

Zaloguj się, aby mieć pełny dostęp do galerii.
Rejestracja jest darmowa i pomaga nam
udostępniać materiały bezpłatnie.

Zaloguj się, aby mieć pełny dostęp do galerii.
Rejestracja jest darmowa i pomaga nam
udostępniać materiały bezpłatnie.

Zaloguj się, aby mieć pełny dostęp do galerii.
Rejestracja jest darmowa i pomaga nam
udostępniać materiały bezpłatnie.

Zaloguj się, aby mieć pełny dostęp do galerii.
Rejestracja jest darmowa i pomaga nam
udostępniać materiały bezpłatnie.

Wyróżnienie honorowe

Studio4SPACE
studio4space.com

Autorzy: Bartosz Dendura, Ewelina Panasiuk, Izabella Janusz, Katarzyna Obara, Tomasz Obara, Lukas Olma, Katarzyna Dendura, Martyna Mądry, Karolina Koźmic, Anna Szerszeń

Uzasadnienie wyboru pracy:
Za logiczne rozwiązania i trafne decyzje urbanistyczne i architektoniczne, umożliwiające dalszą rozbudowę inwestycji, oraz twórcze podejście do rozwiązań związanych ze zrównoważonym rozwojem poprzez zastosowanie drewna.

platforma ARCHIKONKURS istnieje dzięki wsparciu

Forbo
Stowarzyszenie Producentów Cementu
Strona internetowa Archikonkurs wykorzystuje pliki „cookies”. Użytkownik może zmienić warunki korzystania z plików "cookies" poprzez zmianę ustawień przeglądarki. Szczegółowe informacje na temat przechowywania i wykorzystania plików "cookies" znajdują się w Polityce Prywatności