_nr 2025-030

Wyniki konkursu na koncepcję przebudowy budynku Teatru "Bagatela" im. Tadeusza Boya-Żeleńskiego w Krakowie

Informacje

Lokalizacja: Kraków
Województwo: Małopolskie
Organizator: Teatr "Bagatela" im. Tadeusza Boya-Żeleńskiego
Tryb: Zamówienie z wolnej ręki
Rodzaj: Realizacyjny
Typ: Jednoetapowy
Data ogłoszenia konkursu: 25.06.2025
Data rejestracji uczestników: 24.07.2025
Data składania prac: 27.10.2025
Data ogłoszenia wyników: 03.11.2025

Sędziowie

_Przewodniczący:
  • Janusz Sepioł
_Zastępca przewodniczącego:
  • Krzysztof Materna
_Sędzia referent:
  • Mirosław Maniecki
_Członkowie sądu:
  • Paweł Dobrzycki
  • Katarzyna Głażewska
  • Tadeusz Kamisiński
  • Michał Kotański
  • Jerzy Szczepanik-Dzikowski
  • Szymon Wojciechowski
_Sekretarz konkursu:
  • Marek Okniński, Paulina Kapler

Opis konkursu

Przyczyną konkursu zorganizowanego przez Teatr "Bagatela" im. Tadeusza Boya-Żeleńskiego zlokalizowany przy ul. Karmelickiej 6 w Krakowie była potrzeba przebudowy budynku Teatru do celów poszerzenia i zoptymalizowania oferty instytucji. Należało zaprojektować rozwiązania, które umożliwią poprawę organizacji i zarządzania obiektem poprzez dostosowanie infrastruktury do ciągłego unowocześniania technologii scenicznych, podniesienie standardu funkcjonalno-użytkowego Teatru, a także uzwględnienie wymogów zmieniającego się prawa. 
Organizator oczekiwał prac konkursowych, które zaproponują przede wszystkim optymalny układ przestrzenno-użytkowy, ale też redefinicję klasycznej funkcji teatru jako miejsca przedstawień sztuki na scenie. Wobec czego wymogiem szczególnym było włączenie obszaru dolnego foyer do przestrzeni publicznej porzez poszerzenie strefy ruchliwej ulicy miejskiej i stworzenie miejsca spotkań dla ludzi, przestrzeni prezentacji autorskich dzieł w formie mini-galerii i instalacji artystycznych, czy też prezentacji treści komercyjnych lub informacyjnych.
W założeniu zderzenie teatralnego sacrum - przedstawień, antraktu, specyficznego klimatu spotkań - z profanum, czyli codziennością miejskiej ulicy ma określić nową jakość przestrzeni i wywrzeć pozytywny wpływ na świadomość społeczną oraz uczynić ofertę Teatru bardziej atrakcyjną. [AK]

Maksymalny planowany koszt realizacji inwestycji - 48 500 000 zł netto
Maksymalny planowany koszt wynagrodzenia projektanta - 2 800 000 brutto

Materiały zostały opublikowane dzięki uprzejmości i za zgodą Uczestników Konkursu. 

Wyniki konkursu

Zaloguj się, aby mieć pełny dostęp do galerii.
Rejestracja jest darmowa i pomaga nam
udostępniać materiały bezpłatnie.

Zaloguj się, aby mieć pełny dostęp do galerii.
Rejestracja jest darmowa i pomaga nam
udostępniać materiały bezpłatnie.

Zaloguj się, aby mieć pełny dostęp do galerii.
Rejestracja jest darmowa i pomaga nam
udostępniać materiały bezpłatnie.

Zaloguj się, aby mieć pełny dostęp do galerii.
Rejestracja jest darmowa i pomaga nam
udostępniać materiały bezpłatnie.

Zaloguj się, aby mieć pełny dostęp do galerii.
Rejestracja jest darmowa i pomaga nam
udostępniać materiały bezpłatnie.

Zaloguj się, aby mieć pełny dostęp do galerii.
Rejestracja jest darmowa i pomaga nam
udostępniać materiały bezpłatnie.

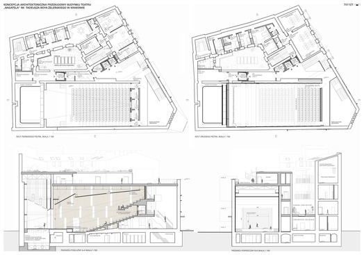
I nagroda 60 000 zł

SAO Architecture
sao.com.pl

Autorzy: Filip Adamczak, Agnieszka Duda, Marcin Kosiński, Barbara Kopiec, Dawid Weremczuk, Aleksandra Buła; technologia teatru: Mateusz Pałagan, Adam Mieszało; akustyka: Lesław Stryczniewicz

Uzasadnienie wyboru pracy:
W jednogłośnej opinii Sądu Konkursowego praca o numerze identyfikacyjnym 731127 najlepiej rozwiązuje złożone zadanie konkursowe. W szczególności wyróżnia się udanym rozwiązaniem zewnętrza, eksponując „piropiktury Skulicza” i zachowując generalny charakter architektury istniejącej. Udanie tworzy wertykalny akcent z witrażami, ważny w skali urbanistycznej jako zamknięcie osi widokowych jak i we wnętrzu.

więcej
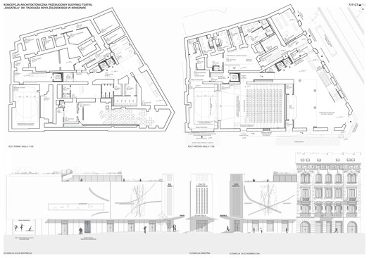
II nagroda 40 000 zł

WXCA
wxca.pl

Autorzy: Michał Czerwiński, Anna Dobek-Lenczewska, Mateusz Sokołowski, Michał Sokołowski, Mateusz Matłok, Szczepan Wroński

Uzasadnienie wyboru pracy:
Pracę cechuje szacunek dla historycznej formy i tradycji Teatru. Wysoki, trzykondygnacyjny hol wejściowy oraz rozwiązanie centralnego dziedzińca są niewątpliwymi atutami projektu. Jednak wejście i lokalizacja szatni w relacji do wielkości holu budzą obawy o funkcjonalność. Na podkreślenie zasługuje staranne opracowanie akustyczne. Wątpliwości budzi głęboka przebudowa balkonu, którą jednak zdaje się nie zapewniać optymalnej widoczności. Projekt wyróżnia się przejrzystym i funkcjonalnym otoczeniem sceny i propozycją wysokiego podscenia.

platforma ARCHIKONKURS istnieje dzięki wsparciu

Forbo
Stowarzyszenie Producentów Cementu
Strona internetowa Archikonkurs wykorzystuje pliki „cookies”. Użytkownik może zmienić warunki korzystania z plików "cookies" poprzez zmianę ustawień przeglądarki. Szczegółowe informacje na temat przechowywania i wykorzystania plików "cookies" znajdują się w Polityce Prywatności