_nr 2025-040

Wyniki konkursu na opracowanie koncepcji wnętrz biblioteki w budynku przy Targu Rakowym 5/6 w Gdańsku

Informacje

Lokalizacja: Gdańsk
Województwo: Pomorskie
Organizator: Wojewódzka i Miejska Biblioteka Publiczna im. Josepha Conrada Korzeniowskiego w Gdańsku
Tryb: Zamówienie z wolnej ręki
Rodzaj: Realizacyjny
Typ: Jednoetapowy
Data ogłoszenia konkursu: 28.08.2025
Data składania prac: 28.11.2025
Data ogłoszenia wyników: 15.12.2025

Opis konkursu

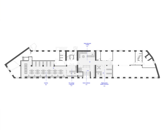
Przedmiotem konkursu zorganizowanego przez Wojewódzką i Miejską Bibliotekę Publiczną im. Josepha Conrada Korzeniowskiego było opracowanie koncepcji wnętrz w budynku biblioteki zlokalizowanym przy Targu Rakowym 5/6 w Gdańsku. Należało zaprojektować rozwiązania dla parteru od jego południowo-wschodniego szczytu aż do poziomu Galerii Biblioteki włącznie oraz dla piętra budynku. [AK]

Maksymalny planowany koszt realizacji inwestycji - 5 350 300 zł brutto
Maksymalny planowany koszt wynagrodzenia projektanta - 350 300 zł brutto

Materiały zostały udostępnione dzieki uprzejmości i za zgodą Uczestników konkursu. 

Wyniki konkursu

Zaloguj się, aby mieć pełny dostęp do galerii.
Rejestracja jest darmowa i pomaga nam
udostępniać materiały bezpłatnie.

Zaloguj się, aby mieć pełny dostęp do galerii.
Rejestracja jest darmowa i pomaga nam
udostępniać materiały bezpłatnie.

Zaloguj się, aby mieć pełny dostęp do galerii.
Rejestracja jest darmowa i pomaga nam
udostępniać materiały bezpłatnie.

Zaloguj się, aby mieć pełny dostęp do galerii.
Rejestracja jest darmowa i pomaga nam
udostępniać materiały bezpłatnie.

Zaloguj się, aby mieć pełny dostęp do galerii.
Rejestracja jest darmowa i pomaga nam
udostępniać materiały bezpłatnie.

Zaloguj się, aby mieć pełny dostęp do galerii.
Rejestracja jest darmowa i pomaga nam
udostępniać materiały bezpłatnie.

Zaloguj się, aby mieć pełny dostęp do galerii.
Rejestracja jest darmowa i pomaga nam
udostępniać materiały bezpłatnie.

Zaloguj się, aby mieć pełny dostęp do galerii.
Rejestracja jest darmowa i pomaga nam
udostępniać materiały bezpłatnie.

Zaloguj się, aby mieć pełny dostęp do galerii.
Rejestracja jest darmowa i pomaga nam
udostępniać materiały bezpłatnie.

Zaloguj się, aby mieć pełny dostęp do galerii.
Rejestracja jest darmowa i pomaga nam
udostępniać materiały bezpłatnie.

Zaloguj się, aby mieć pełny dostęp do galerii.
Rejestracja jest darmowa i pomaga nam
udostępniać materiały bezpłatnie.

Zaloguj się, aby mieć pełny dostęp do galerii.
Rejestracja jest darmowa i pomaga nam
udostępniać materiały bezpłatnie.

Zaloguj się, aby mieć pełny dostęp do galerii.
Rejestracja jest darmowa i pomaga nam
udostępniać materiały bezpłatnie.

Zaloguj się, aby mieć pełny dostęp do galerii.
Rejestracja jest darmowa i pomaga nam
udostępniać materiały bezpłatnie.

I nagroda 25 000 zł

Studio 1:1
studio1do1.pl

Opis koncepcji konkursowej:
Ideą projektu koncepcyjnego jest stworzenie biblioteki jako nowoczesnego centrum kultury. Współczesna biblioteka powinna być przestrzenią wielofunkcyjną. Jej nowoczesna estetyka może czerpać inspiracje z lokalnych kodów kulturowych i symboli. Wielofunkcyjność wydzielonych stref umożliwia organizację spotkań, pracy zespołowej, kameralnych prelekcji oraz odczytów. Mobilność i przekształcalność części wyposażenia pozwalają na elastyczną zmianę aranżacji, dostosowaną do szerokiego programu instytucji.

więcej
Zaloguj się, aby mieć pełny dostęp do galerii.
Rejestracja jest darmowa i pomaga nam
udostępniać materiały bezpłatnie.

Zaloguj się, aby mieć pełny dostęp do galerii.
Rejestracja jest darmowa i pomaga nam
udostępniać materiały bezpłatnie.

Zaloguj się, aby mieć pełny dostęp do galerii.
Rejestracja jest darmowa i pomaga nam
udostępniać materiały bezpłatnie.

Zaloguj się, aby mieć pełny dostęp do galerii.
Rejestracja jest darmowa i pomaga nam
udostępniać materiały bezpłatnie.

Zaloguj się, aby mieć pełny dostęp do galerii.
Rejestracja jest darmowa i pomaga nam
udostępniać materiały bezpłatnie.

Zaloguj się, aby mieć pełny dostęp do galerii.
Rejestracja jest darmowa i pomaga nam
udostępniać materiały bezpłatnie.

Zaloguj się, aby mieć pełny dostęp do galerii.
Rejestracja jest darmowa i pomaga nam
udostępniać materiały bezpłatnie.

Zaloguj się, aby mieć pełny dostęp do galerii.
Rejestracja jest darmowa i pomaga nam
udostępniać materiały bezpłatnie.

Zaloguj się, aby mieć pełny dostęp do galerii.
Rejestracja jest darmowa i pomaga nam
udostępniać materiały bezpłatnie.

Zaloguj się, aby mieć pełny dostęp do galerii.
Rejestracja jest darmowa i pomaga nam
udostępniać materiały bezpłatnie.

Zaloguj się, aby mieć pełny dostęp do galerii.
Rejestracja jest darmowa i pomaga nam
udostępniać materiały bezpłatnie.

II nagroda 10 000 zł

Dżus GK Architekci
dzusgkarchitekci.pl

Zaloguj się, aby mieć pełny dostęp do galerii.
Rejestracja jest darmowa i pomaga nam
udostępniać materiały bezpłatnie.

Zaloguj się, aby mieć pełny dostęp do galerii.
Rejestracja jest darmowa i pomaga nam
udostępniać materiały bezpłatnie.

Zaloguj się, aby mieć pełny dostęp do galerii.
Rejestracja jest darmowa i pomaga nam
udostępniać materiały bezpłatnie.

Zaloguj się, aby mieć pełny dostęp do galerii.
Rejestracja jest darmowa i pomaga nam
udostępniać materiały bezpłatnie.

Zaloguj się, aby mieć pełny dostęp do galerii.
Rejestracja jest darmowa i pomaga nam
udostępniać materiały bezpłatnie.

Zaloguj się, aby mieć pełny dostęp do galerii.
Rejestracja jest darmowa i pomaga nam
udostępniać materiały bezpłatnie.

Zaloguj się, aby mieć pełny dostęp do galerii.
Rejestracja jest darmowa i pomaga nam
udostępniać materiały bezpłatnie.

Zaloguj się, aby mieć pełny dostęp do galerii.
Rejestracja jest darmowa i pomaga nam
udostępniać materiały bezpłatnie.

Zaloguj się, aby mieć pełny dostęp do galerii.
Rejestracja jest darmowa i pomaga nam
udostępniać materiały bezpłatnie.

Zaloguj się, aby mieć pełny dostęp do galerii.
Rejestracja jest darmowa i pomaga nam
udostępniać materiały bezpłatnie.

Zaloguj się, aby mieć pełny dostęp do galerii.
Rejestracja jest darmowa i pomaga nam
udostępniać materiały bezpłatnie.

Zaloguj się, aby mieć pełny dostęp do galerii.
Rejestracja jest darmowa i pomaga nam
udostępniać materiały bezpłatnie.

III nagroda 8 000 zł

AKO Architekci
4developments.pl

platforma ARCHIKONKURS istnieje dzięki wsparciu

Forbo
Stowarzyszenie Producentów Cementu
Strona internetowa Archikonkurs wykorzystuje pliki „cookies”. Użytkownik może zmienić warunki korzystania z plików "cookies" poprzez zmianę ustawień przeglądarki. Szczegółowe informacje na temat przechowywania i wykorzystania plików "cookies" znajdują się w Polityce Prywatności