_nr 2025-043

Wyniki konkursu na koncepcję budowy siedziby Teatru Współczesnego na Łasztowni w Szczecinie

Informacje

Lokalizacja: Szczecin
Województwo: Zachodniopomorskie
Organizator: Gmina Miasto Szczecin
Współorganizator: SARP Oddział Szczecin
Tryb: Zamówienie z wolnej ręki
Rodzaj: Realizacyjny
Typ: Jednoetapowy
Data ogłoszenia konkursu: 09.09.2025
Data rejestracji uczestników: 16.10.2025
Data składania prac: 19.02.2026
Data ogłoszenia wyników: 13.03.2026

Sędziowie

_Przewodniczący:
  • Szczepan Wroński, OW SARP
_Zastępca przewodniczącego:
  • Renato Rizzi
_Sędzia referent:
  • Piotr Śmierzewski, SARP Oddział Szczecin
_Członkowie sądu:
  • Jacek Lenart, SARP Oddział Szczecin
  • Tomasz Maksymiuk, SARP Oddział Szczecin
  • Paweł Balcer, Szczecińskie Inwestycje Miejskie
  • Marek Kogucik, Architekt Miasta Szczecina
  • Mirosław Gawęda, Teatr Współczesny w Szczecinie
  • Michał Buszewicz, Teatr Współczesny w Szczecinie
  • Angelika Szerniewicz-Kwas, Biuro Planowania Przestrzennego Miasta Szczecina
_Sekretarz konkursu:
  • Anna Pazdur-Czarnowska, SARP Oddział Szczecin
  • Klaudia Czarnecka, SIM

Opis konkursu

Przedmiotem konkursu zorganizowanego przez Gminę Miasto Szczecin przy udziale szczecińskiego oddziału SARP było opracowanie koncepcji budynku lub budynków nowej siedziby Teatru Współczesnego wraz z zagospodarowaniem przestrzeni publicznej, zlokalizowanego na Łasztowni pomiędzy bulwarem Odry (ul. Zbożowa), a ulicami Spichrzową, Władysława IV i Trasą Zamkową im. Piotra Zaremby w Szczecinie. Należało zaprojektować obiekt kultury mieszczący trzy sale: Dużą Scenę, Scenę Kameralną, a także Scenę Społeczną/ Eksperymentalną. Preferowano podział na co najmniej dwie bryły: budynek dla strefy sceny dużej i kameralnej oraz drugi dla strefy sceny społeczno-edukacyjnej wraz z kompleksem mieszkalnym. Jedna bryła była dopuszczalna pod warunkiem zachowania dostępności wszystkich scen pod różne spektakle wystawiane jednocześnie, a także uwzględnienia wymogu izolacyjności akustycznej. 

  • Duża Scena

Przezanczona do wystawiania inscenizacji wielkoformatowych, pełnometrazowych spektakli o potencjale wysokiej frekwencji publiczności - z widownią na ok. 450 osób. Przewidziana jest przede wszystkim pod twórzcość uznanych reżyserów i sztuki współczesne, ale też adaptacje literatury klasycznej i realizacje tekstów dramatycznych. 

  • Scena Kameralna 

Przeznaczona do poszukiwań gatunkowych, twórczego eksperymentowania i znajdowania nowych form - z mobilną widonią na ok. 150-200 osób. W repertuarze znajdą się debiuty oraz eksperymenty twórców z większym dorobkiem.

  • Scena Społeczna/ Eksperymentalna

Miejsce dla pokazów ważnych inicjatyw lokalnych zarówno w kontekście miasta, jak i województwa. Powierzchnia 400 m2 z możlwiością ustawienia widowni na 100-240 miejsc. Przestrzeń dla pokazów gościnnych i systemu rezydencji, a także pokazów prac spoza podstawowego repertuaru - o charakterze eklektycznym lub eksperymentalnym.

W zakresie zagospodarowania terenu należało uwzględnić park teatralny wokół, w tym trawniki i zadrzewienie, a także ideę Floating Garden. Oczekiwano projektów miejsca publicznego o charakterze społecznym, zachęcającego do odpoczynku i rekreacji, jak również umożliwiającego urządzanie wydarzeń plenerowych. Nowy Teatr Współczesny ma być miejscem otwartym na szeroko rozumianą różnorodność (wiekową, społeczną, kulturową itp.), w którym przestrzeń teatralna wychodzi poza mury budynku i staje się częścią ekosystemu miejskiego. Lokalizacja nad brzegiem rzeki ma być przyczynkiem do stworzenia obiektu otwartego na miasto i stanowiącego impuls do dalszego rozwoju Łasztowni. [AK]

W konkursie zostały złożone 43 opracowania. 

Maksymalny planowany koszt realizacji inwestycji - 285 000 000 zł brutto
Maksymalny planowany koszt wynagrodzenia projektanta - 16 800 000 zł brutto

Materiały zostały opublikowane dzięki uprzejmości i za zgodą Uczestników Konkursu. 

Wyniki konkursu

Zaloguj się, aby mieć pełny dostęp do galerii.
Rejestracja jest darmowa i pomaga nam
udostępniać materiały bezpłatnie.

Zaloguj się, aby mieć pełny dostęp do galerii.
Rejestracja jest darmowa i pomaga nam
udostępniać materiały bezpłatnie.

Zaloguj się, aby mieć pełny dostęp do galerii.
Rejestracja jest darmowa i pomaga nam
udostępniać materiały bezpłatnie.

Zaloguj się, aby mieć pełny dostęp do galerii.
Rejestracja jest darmowa i pomaga nam
udostępniać materiały bezpłatnie.

Zaloguj się, aby mieć pełny dostęp do galerii.
Rejestracja jest darmowa i pomaga nam
udostępniać materiały bezpłatnie.

Zaloguj się, aby mieć pełny dostęp do galerii.
Rejestracja jest darmowa i pomaga nam
udostępniać materiały bezpłatnie.

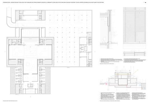
I nagroda 300 000 zł

SAAW
saaw.pl

Autorzy: Współpraca: Obok Studio Martyna Dryś, Obok Studio Maciej Marszał, SAAW Emilia Sobańska; Wizualizacje: Mukko Studio

Uzasadnienie wyboru pracy:
Za wysokie walory urbanistyczno-architektoniczne pracy przejawiające się w udanym rozbiciu programu funkcjonalnego na dwa niezależne budynki oraz wprowadzenie do przestrzeni przez nie wykreowanej terenów zielonych o wysokich, miastotwórczych walorach. Tereny te stanowić mogą pożądane uzupełnienie programu teatru o zewnętrzne, ogólnodostępne miejsca spotkania widzów z aktorami w ramach interaktywnych działań prospołecznych. 

więcej
Zaloguj się, aby mieć pełny dostęp do galerii.
Rejestracja jest darmowa i pomaga nam
udostępniać materiały bezpłatnie.

Zaloguj się, aby mieć pełny dostęp do galerii.
Rejestracja jest darmowa i pomaga nam
udostępniać materiały bezpłatnie.

Zaloguj się, aby mieć pełny dostęp do galerii.
Rejestracja jest darmowa i pomaga nam
udostępniać materiały bezpłatnie.

Zaloguj się, aby mieć pełny dostęp do galerii.
Rejestracja jest darmowa i pomaga nam
udostępniać materiały bezpłatnie.

Zaloguj się, aby mieć pełny dostęp do galerii.
Rejestracja jest darmowa i pomaga nam
udostępniać materiały bezpłatnie.

Zaloguj się, aby mieć pełny dostęp do galerii.
Rejestracja jest darmowa i pomaga nam
udostępniać materiały bezpłatnie.

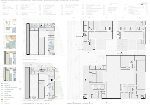
II nagroda 200 000 zł

NM architekci Tomasz Marciniewicz
nmarchitekci.pl

Uzasadnienie wyboru pracy:
Za próbę stworzenia teatru jako zespołu indywidualnych scen z wytworzonymi między nimi placami, mogącymi stanowić atrakcyjną przestrzeń rekreacyjną oraz inscenizacyjną. Budynek otwiera się zarówno na bulwar - rzekę oraz na planowaną, nową śródmiejska ulicę Władysława IV, co stanowi zapowiedź budowania dobrych relacji w szerszym kontekście Łasztowni. Czytelny układ funkcjonalny, z atrakcyjnym przenikaniem foyer i placu zachodniego oraz otwarcie sal teatralnych na zewnątrz dają duże możliwości inscenizacyjne.

Zaloguj się, aby mieć pełny dostęp do galerii.
Rejestracja jest darmowa i pomaga nam
udostępniać materiały bezpłatnie.

Zaloguj się, aby mieć pełny dostęp do galerii.
Rejestracja jest darmowa i pomaga nam
udostępniać materiały bezpłatnie.

Zaloguj się, aby mieć pełny dostęp do galerii.
Rejestracja jest darmowa i pomaga nam
udostępniać materiały bezpłatnie.

Zaloguj się, aby mieć pełny dostęp do galerii.
Rejestracja jest darmowa i pomaga nam
udostępniać materiały bezpłatnie.

Zaloguj się, aby mieć pełny dostęp do galerii.
Rejestracja jest darmowa i pomaga nam
udostępniać materiały bezpłatnie.

Zaloguj się, aby mieć pełny dostęp do galerii.
Rejestracja jest darmowa i pomaga nam
udostępniać materiały bezpłatnie.

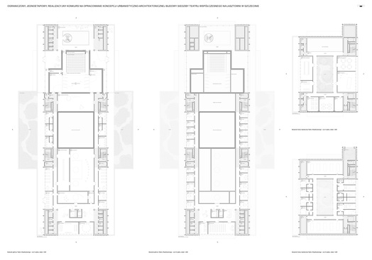
III nagroda 100 000 zł

Heinle, Wischer und Partner Architekci
heinlewischerpartner.pl

Autorzy: Anna Stryszewska-Słońska, Nina Kamińska, Natalia Sochacka-Majewska, Kinga Kopczyk, Marta Homrowska; Opracowanie w zakresie akustyki: Piotr Kozłowski, Bartłomiej Konik, Michał Szczepański

Uzasadnienie wyboru pracy:
Za próbę stworzenia kompaktowego organizmu teatralnego, który nawiązuje i interpretuje współczesne, ikoniczne elementy architektoniczne miasta Szczecina. Jury doceniło nawiązanie obiektu do historycznej, pierzejowej zabudowy Łasztowni, poprzez artykulację jego fasady frontowej. Praca wykazuje wysoki poziom spójności i konsekwencji pomiędzy funkcją i jej architektoniczną reprezentacją.

Zaloguj się, aby mieć pełny dostęp do galerii.
Rejestracja jest darmowa i pomaga nam
udostępniać materiały bezpłatnie.

Zaloguj się, aby mieć pełny dostęp do galerii.
Rejestracja jest darmowa i pomaga nam
udostępniać materiały bezpłatnie.

Zaloguj się, aby mieć pełny dostęp do galerii.
Rejestracja jest darmowa i pomaga nam
udostępniać materiały bezpłatnie.

Zaloguj się, aby mieć pełny dostęp do galerii.
Rejestracja jest darmowa i pomaga nam
udostępniać materiały bezpłatnie.

Zaloguj się, aby mieć pełny dostęp do galerii.
Rejestracja jest darmowa i pomaga nam
udostępniać materiały bezpłatnie.

Zaloguj się, aby mieć pełny dostęp do galerii.
Rejestracja jest darmowa i pomaga nam
udostępniać materiały bezpłatnie.

Zaloguj się, aby mieć pełny dostęp do galerii.
Rejestracja jest darmowa i pomaga nam
udostępniać materiały bezpłatnie.

Zaloguj się, aby mieć pełny dostęp do galerii.
Rejestracja jest darmowa i pomaga nam
udostępniać materiały bezpłatnie.

Wyróżnienie równorzędne 50 000 zł

EOVASTUDIO, Kruszewski Architekci, NGNP arquitectos
eovastudio.com, kruszewski-architekci.pl, ngnparquitectos.com

Autorzy: Romuald Kruszewski, Juan Jose Baena Martinez, Marta Gomez Martinez, Joanna Jędruś, Jose Antonio Plaza, Enrique Naranjo, Juan Carlos Herrera, Bartosz Dankiewicz

Uzasadnienie wyboru pracy:
Za próbę wykreowania miejskiej, zadaszonej przestrzeni będącej widownią, dla której sceną jest zabudowa starego miasta Szczecina

Opis autorski: 

Teatr Współczesny na Łasztowni, jego otwarta struktura, nawiązuje silną więź z miastem i rzeką. Front Teatru stanowi ogólnodostępną przestrzeń publiczną zwróconą  w kierunku rzeki. Platforma teatru unosi się nad wodą na wysokości 7 metrów skąd roztacza się wspaniały widok na Odrę i miasto. Cała wewnętrzna struktura teatru jest jakby urbanistyczną tkanką, miasteczkiem, które ma swoje uliczki place, otwarcia. Teatr sytuuje się w pobliżu i otwiera na rzekę.

więcej
Zaloguj się, aby mieć pełny dostęp do galerii.
Rejestracja jest darmowa i pomaga nam
udostępniać materiały bezpłatnie.

Zaloguj się, aby mieć pełny dostęp do galerii.
Rejestracja jest darmowa i pomaga nam
udostępniać materiały bezpłatnie.

Zaloguj się, aby mieć pełny dostęp do galerii.
Rejestracja jest darmowa i pomaga nam
udostępniać materiały bezpłatnie.

Zaloguj się, aby mieć pełny dostęp do galerii.
Rejestracja jest darmowa i pomaga nam
udostępniać materiały bezpłatnie.

Zaloguj się, aby mieć pełny dostęp do galerii.
Rejestracja jest darmowa i pomaga nam
udostępniać materiały bezpłatnie.

Zaloguj się, aby mieć pełny dostęp do galerii.
Rejestracja jest darmowa i pomaga nam
udostępniać materiały bezpłatnie.

Wyróżnienie równorzędne 50 000 zł

OVO Grąbczewscy Architekci
ovo-grabczewscy.pl

Autorzy: Barbara Grąbczewska, Oskar Grąbczewski, Marek Grąbczewski, Kamil Kajdas, Michał Kolonko, Maria Grąbczewska, Anna Grąbczewska

Uzadanienie wyboru pracy:
Za indywidualność twórczą oraz interesujące nawiązanie do dawnej struktury zabudowy Łasztowni poprzez powrót do gęstej, miejskiej wypełniającej zabudowy kwartałowej.

Zaloguj się, aby mieć pełny dostęp do galerii.
Rejestracja jest darmowa i pomaga nam
udostępniać materiały bezpłatnie.

Zaloguj się, aby mieć pełny dostęp do galerii.
Rejestracja jest darmowa i pomaga nam
udostępniać materiały bezpłatnie.

Zaloguj się, aby mieć pełny dostęp do galerii.
Rejestracja jest darmowa i pomaga nam
udostępniać materiały bezpłatnie.

Zaloguj się, aby mieć pełny dostęp do galerii.
Rejestracja jest darmowa i pomaga nam
udostępniać materiały bezpłatnie.

Zaloguj się, aby mieć pełny dostęp do galerii.
Rejestracja jest darmowa i pomaga nam
udostępniać materiały bezpłatnie.

Zaloguj się, aby mieć pełny dostęp do galerii.
Rejestracja jest darmowa i pomaga nam
udostępniać materiały bezpłatnie.

Wyróżnienie równorzędne 50 000 zł

Atelier Tektura
atelier-tektura.pl

Uzasadnienie wyboru pracy:
Za udaną próbę budowania intymnej skali wnętrz urbanistycznych poprzez rozdrobnioną strukturę budynku oraz gradację wysokości trzech sal teatralnych.

platforma ARCHIKONKURS istnieje dzięki wsparciu

Forbo
Stowarzyszenie Producentów Cementu
Strona internetowa Archikonkurs wykorzystuje pliki „cookies”. Użytkownik może zmienić warunki korzystania z plików "cookies" poprzez zmianę ustawień przeglądarki. Szczegółowe informacje na temat przechowywania i wykorzystania plików "cookies" znajdują się w Polityce Prywatności