_nr 2025-044

Wyniki konkursu na koncepcję nowej siedziby Filharmonii im. K. Szymanowskiego w Krakowie

Informacje

Lokalizacja: Kraków
Województwo: Małopolskie
Organizator: Województwo Małopolskie
Współorganizator: SARP Oddział Kraków
Tryb: Zamówienie z wolnej ręki
Rodzaj: Realizacyjny
Typ: Dwuetapowy
Data ogłoszenia konkursu: 11.09.2025
Data rejestracji uczestników: 03.10.2025
Data składania prac: 05.12.2025
Data ogłoszenia wyników: 23.03.2026

Sędziowie

_Przewodniczący:
  • Ewa Kuryłowicz, OW SARP
_Sędzia referent:
  • Marcin Brataniec, SARP Oddział Kraków
_Członkowie sądu:
  • Jette Hoop
  • Artur Jasiński, SARP Oddział Kraków
  • Marcin Sadowski, OW SARP
  • Piotr Wróbel, SARP Oddział Kraków
  • Mariusz Twardowski, IARP
  • Iwona Gibas, Urząd Marszałkowski WM
  • Jan Tadeusz Duda, Sejmik WM
  • Anna Hamala, UMWM
  • Monika Gubała, UMWM
  • Mateusz Prendota, Filharmonia Krakowska
  • Beata Płoska, FK
  • Joanna Wnuk-Nazarowa
  • Andrzej Kosendiak, Narodowe Forum Muzyki
  • Michał Klauza, FK
  • Andrzej Kłosak, WM
_Sekretarz konkursu:
  • Rafał Mroczkowski, OW SARP

Opis konkursu

Przedmiotem konkursu zorganizowanego przez Województwo Małopolskie przy wsparciu krakowskiego Oddziału SARP było pracowanie koncepcji nowej siedziby Filharmonii im. K. Szymanowskiego wraz z wewnętrznym układem komunikacyjnym i zagospodarowaniem terenu, zlokalizowanej w sąsiedztwie Ronda Grzegórzeckiego w Krakowie. Należało zaprojektować nowoczesny, nowatorski a zarazem ponadczasowy obiekt kultury odpowiadający współczesnym wymaganiom dla filharmonii. Kopncepcje budynku miały uwzględniać w sczególności:

  • Filharmoniczną Salę Koncertową na ok. 1 900 miejsc dla publiczności;
  • Salę Kameralną na ok. 300 miejsc;
  • Foyer - ok. 2 500 miejsc;
  • sale prób i ćwiczeniowe;
  • studio nagrań;
  • przestrzeń biur, pokoi pracowników technicznych i obsługi, archiwum zakładowego, magazynu instrumentów;
  • 2 sale konferencyjne z zapleczem i foyer;
  • restaurację.

Powierzchnia użytkowa budynku miała wynieść ok. 18 900 m2. Szczególną uwagę zwrócono na zapewnienie najwyższej jakości warunków akustycznych oraz rolę społeczną i kulturową inwestycji. Nowa siedziba Filharmonii ma być nie tylko miejscem koncertów wybitnych artystów, ale też przestrzenią spotkań edukacyjnych oraz integracji społecznej. [AK]

Maksymalny planowany koszt realizacji inwestycji - 415 000 000 zł brutto
Maksymalny planowany koszt wynagrodzenia projektanta nie powinien przekroczyć kwoty stanowiącej 8%
planowanego kosztu realizacji inwestycji brutto

Materiały zostały opublikowane dzięki uprzejmości i zgodzie Organizatora Konkursu.

Wyniki konkursu

Zaloguj się, aby mieć pełny dostęp do galerii.
Rejestracja jest darmowa i pomaga nam
udostępniać materiały bezpłatnie.

Zaloguj się, aby mieć pełny dostęp do galerii.
Rejestracja jest darmowa i pomaga nam
udostępniać materiały bezpłatnie.

Zaloguj się, aby mieć pełny dostęp do galerii.
Rejestracja jest darmowa i pomaga nam
udostępniać materiały bezpłatnie.

Zaloguj się, aby mieć pełny dostęp do galerii.
Rejestracja jest darmowa i pomaga nam
udostępniać materiały bezpłatnie.

Zaloguj się, aby mieć pełny dostęp do galerii.
Rejestracja jest darmowa i pomaga nam
udostępniać materiały bezpłatnie.

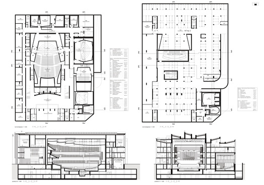
I nagroda 170 000 zł

Ingarden & Ewý
iea.com.pl

Autorzy: Krzysztof Ingarden, Jacek Ewý, Paweł Maryńczuk, Marcin Ewý, Bartosz Kardaś, Sylwester Staniucha, Katarzyna Cieślak-Śliwa, Ola Maslenkowa, Joanna Mikołajec, Oliwia Żarnowska; Akustyka: Keiji Oguchi (Nagata Acoustics Inc.), Piotr Kozłowski (PAK Pracownia Akustyczna Kozłowski); Konstrukcja: Mariusz Szefer (GSBK Biuro Konstrukcyjne); Instalacje: Marta Mazgaj (ARUP); Krajobraz: Marta Szar-Wojasińska; Wizualizacje: Michał Przetaczek (MPVIS)

Uzasadnienie wyboru pracy:
Za trafne rozstrzygnięcia urbanistyczne uwzględniające trudne uwarunkowania lokalizacyjne; atrakcyjność i wysoką jakość architektury; bardzo dobre założenia w zakresie ogólnej dyspozycji funkcjonalno-przestrzennej wymaganego programu użytkowego; najlepsze rozplanowanie głównych pomieszczeń stanowiących o istocie działania filharmonii, a także bardzo dobrze rozwiązane wzajemne relacje pomiędzy salami
koncertowymi, strefami pomieszczeń słuchaczy, muzyków i transportu instrumentów.

więcej
Zaloguj się, aby mieć pełny dostęp do galerii.
Rejestracja jest darmowa i pomaga nam
udostępniać materiały bezpłatnie.

Zaloguj się, aby mieć pełny dostęp do galerii.
Rejestracja jest darmowa i pomaga nam
udostępniać materiały bezpłatnie.

Zaloguj się, aby mieć pełny dostęp do galerii.
Rejestracja jest darmowa i pomaga nam
udostępniać materiały bezpłatnie.

Zaloguj się, aby mieć pełny dostęp do galerii.
Rejestracja jest darmowa i pomaga nam
udostępniać materiały bezpłatnie.

Zaloguj się, aby mieć pełny dostęp do galerii.
Rejestracja jest darmowa i pomaga nam
udostępniać materiały bezpłatnie.

II nagroda 100 000 zł

gmp International GmbH
gmp.de

Autorzy: Stephan Schütz, Nicolas Pomränke, Stefan Hornscheidt, Alicja Nowak, Yahan Zeng, Chi Zhang, Annette Löber, Reibun Funaki, Anna Bulanda-Jansen; Akustyka: Eckhard Kahle, Joerg Kümmel; Technika sceniczna: Christoph Franzen; Konstrukcja: Sven Plieninger; Krajobraz: Sebastian Fauck; Zrównowazony rozwój: Matthias Rammig

Uzasadnienie wyboru pracy:
Za przejrzyste założenia uczynienia obiektu elementem krajobrazu miasta, co zostało rozwiązane z uszanowaniem uwarunkowań szeroko pojętej dostępności i inkluzywności, przy wykorzystaniu walorów proponowanej zieleni, stanowiąc też próbę włączenia topografii budynku do aktywnej strefy rekreacji miejskiej.

więcej
Zaloguj się, aby mieć pełny dostęp do galerii.
Rejestracja jest darmowa i pomaga nam
udostępniać materiały bezpłatnie.

Zaloguj się, aby mieć pełny dostęp do galerii.
Rejestracja jest darmowa i pomaga nam
udostępniać materiały bezpłatnie.

Zaloguj się, aby mieć pełny dostęp do galerii.
Rejestracja jest darmowa i pomaga nam
udostępniać materiały bezpłatnie.

Zaloguj się, aby mieć pełny dostęp do galerii.
Rejestracja jest darmowa i pomaga nam
udostępniać materiały bezpłatnie.

Zaloguj się, aby mieć pełny dostęp do galerii.
Rejestracja jest darmowa i pomaga nam
udostępniać materiały bezpłatnie.

Wyróżnienie 50 000 zł

JSK Architekci
jskarchitekci.pl

Autorzy: Zbigniew Pszczulny, Mariusz Rutz, Piotr Bury, Sebastian Kawalec, Piotr Słomianowski, Natalia Trabelsi; Krajobraz: Anna Wiechietek; Akustyka: Tateo Nakajima, Philip Wright, Edward Arenius, Jennifer Kolosowska, Paul Adams, Matthew Atwood, Foteini Kanellopoulou, Vanessa Keung, Maggie Wang Zuniga, Taewon Park, Nick MacLiammoir

Uzasadnienie wyboru pracy:
Za propozycję obiektu właściwie wpisanego w kontekst urbanistyczny - zarówno pod względem skali jak i kompozycji umiejętnie łączącej różne kierunki urbanistyczne miejsca. Sąd konkursowy docenił jakość rozwiązań architektonicznych, powściągliwość i elegancję proporcji oraz artykulacji fasad.

więcej
Zaloguj się, aby mieć pełny dostęp do galerii.
Rejestracja jest darmowa i pomaga nam
udostępniać materiały bezpłatnie.

Zaloguj się, aby mieć pełny dostęp do galerii.
Rejestracja jest darmowa i pomaga nam
udostępniać materiały bezpłatnie.

Zaloguj się, aby mieć pełny dostęp do galerii.
Rejestracja jest darmowa i pomaga nam
udostępniać materiały bezpłatnie.

Zaloguj się, aby mieć pełny dostęp do galerii.
Rejestracja jest darmowa i pomaga nam
udostępniać materiały bezpłatnie.

Zaloguj się, aby mieć pełny dostęp do galerii.
Rejestracja jest darmowa i pomaga nam
udostępniać materiały bezpłatnie.

Wyróżnienie 50 000 zł

SBS Engineering Group, Pitágoras – arquitectura e engenharia integradas
sbs-engineeringgroup.com, pitagorasgroup.com

Autorzy: Maher Matar, Raul Roque, Alexandre Coelho Lima, Manuel Roque, Anna Kowal, Tomasz Giefert, Agnieszka Gozdek, André Malheiro, Fábio Acciaiuoli de Castro, Margarida Costa Pinto; Akustyka: Thomas Wulfrank, Vincent Berrier, Octávio Inácio; Konstrukcja: Sławomir Pastuszka; Instalacje: Piotr Korwin-Piotrowski, Michał Matyjaszczyk (MEP); Zrównoważony rozwój: Wiktor Kowalski, Magdalena Pawelczak; Dostępność: Jan Cieśla

Uzasadnienie wyboru pracy:
Za poprawne rozwiązania funkcjonalne oraz dobre rozwiązania dotyczące sali koncertowej i sali kameralnej. Te rozwiązania dają możliwość uzyskania dobrych parametrów akustycznych i sprawnego funkcjonowania obiektu. Ciekawie kształtowana jest strefa wejściowa obiektu.

więcej
Zaloguj się, aby mieć pełny dostęp do galerii.
Rejestracja jest darmowa i pomaga nam
udostępniać materiały bezpłatnie.

Zaloguj się, aby mieć pełny dostęp do galerii.
Rejestracja jest darmowa i pomaga nam
udostępniać materiały bezpłatnie.

Zaloguj się, aby mieć pełny dostęp do galerii.
Rejestracja jest darmowa i pomaga nam
udostępniać materiały bezpłatnie.

Zaloguj się, aby mieć pełny dostęp do galerii.
Rejestracja jest darmowa i pomaga nam
udostępniać materiały bezpłatnie.

Zaloguj się, aby mieć pełny dostęp do galerii.
Rejestracja jest darmowa i pomaga nam
udostępniać materiały bezpłatnie.

Wyróżnienie 50 000 zł

Plus3-Architekci
plus3architekci.pl

Autorzy: Katarzyna Głażewska, Krzysztof Bagiński, Patryk Rosiński, Szymon Pawelczuk, Hanna Kazantseva, Pola Machinska, Grażyna Woźniak-Głażewska, Jadwiga Trzeciakowska, Karolina Orłowska

Uzasadnienie wyboru pracy:
Za propozycję kształtowania fasady frontowej i strefy wejścia, a także ogólnie prawidłowe dyspozycje funkcjonalne. Sąd konkursowy zwrócił uwagę, że proponowana fasada wejściowa pozostaje jednak bez związku przestrzennego i strukturalnego z całością przestrzeni obiektu, co powoduje jego małą podatność na zmiany w dostosowaniu do wymagań funkcjonalnych i akustycznych.

więcej

platforma ARCHIKONKURS istnieje dzięki wsparciu

Forbo
Stowarzyszenie Producentów Cementu
Strona internetowa Archikonkurs wykorzystuje pliki „cookies”. Użytkownik może zmienić warunki korzystania z plików "cookies" poprzez zmianę ustawień przeglądarki. Szczegółowe informacje na temat przechowywania i wykorzystania plików "cookies" znajdują się w Polityce Prywatności